Москва,

Поиск недвижимости

Аренда помещения под офис

Аренда помещения под офис — г. Москва, Верейская ул., 29, Москва

Цена аренды

561 267 руб. / 9 542 $ / 7 858 € / 7 296 £

объект № 13 597 809

Район
ЗАО, Можайский район
Метро, ориентир
м. Кунцевская — 2,4 км

Площадь
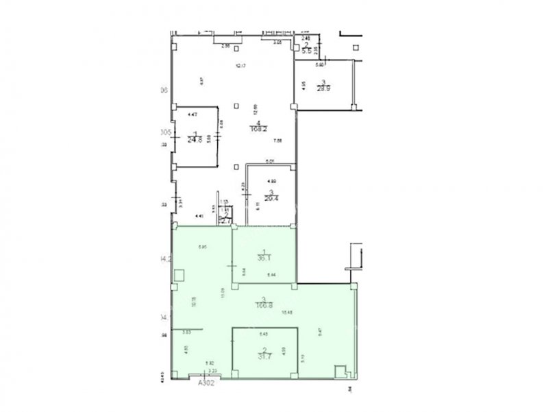
235,50 м²
Этаж
3/7

Здание

Класс
B+
Всего этажей
7
Лифт
есть

Дополнительная информация


Офисное помещение 235.5 кв. м в бизнес-центре «Верейская Плаза 3».

Округ: Западный (ЗАО). Район: Можайский. Ближайшие станции метро: Кунцевская, Аминьевская, Давыдково. Характеристики:
- Класс: B+; - Арендопригодная площадь: 92650; - Код налоговой: 31; - Высота потолков: 3.6 м; - Наличие лифта: Есть; - Кол-во мест наземного паркинга: 752; - Кол-во мест подземного паркинга: 100; - Шаг колонн: 6x6 м. Арендная ставка: 28 599 руб./кв. м в год. Финансовые условия: - В стоимость включено: OPEX, НДС; - Оплачивается отдельно: Интернет, Коммунальные услуги, Телефония, Уборка, Электроэнергия. Без комиссии и скрытых платежей для арендатора.
Готовы оперативно организовать просмотр в удобное время, предоставить PDF-презентацию и план. ID = c_698566
Состояние объекта: отличное
Количество предоставляемых парковочных мест: 852
Наличие предприятий общепита в здании: есть
Есть системы кондиционирования
Есть вентиляция

Контактная информация

Bright Rich | CORFAC International

тел.: показать телефон

На карте

Фотографии объекта

Другие объекты этого собственника

Другие объекты этого собственника

г. Москва, 2-я Хуторская ул., 38А

г. Москва, 2-я Хуторская ул., 38А

г. Москва, 2-я Хуторская ул., 38А

Аренда помещения под офис, 254,70 м²

551 858 руб. в месяц

г. Москва, 2-я Хуторская ул., 38А

г. Москва, 2-я Хуторская ул., 38А

г. Москва, 2-я Хуторская ул., 38А

Аренда помещения под офис, 250,10 м²

541 892 руб. в месяц

г. Москва, Волгоградский пр., 43 корп. 3

г. Москва, Волгоградский пр., 43 корп. 3

г. Москва, Волгоградский пр., 43 корп. 3

Аренда помещения под офис, 242,82 м²

541 003 руб. в месяц

г. Москва, 2-я Хуторская ул., 38А

г. Москва, 2-я Хуторская ул., 38А

г. Москва, 2-я Хуторская ул., 38А

Аренда помещения под офис, 271,10 м²

587 392 руб. в месяц

г. Москва, Верейская ул., 29

г. Москва, Верейская ул., 29

г. Москва, Верейская ул., 29

Аренда помещения под офис, 222,30 м²

529 808 руб. в месяц

г. Москва, Верейская ул., 29

г. Москва, Верейская ул., 29

г. Москва, Верейская ул., 29

Аренда помещения под офис, 217,00 м²

517 176 руб. в месяц

г. Москва, 2-й Южнопортовый проезд, 20А стр. 4

г. Москва, 2-й Южнопортовый проезд, 20А стр. 4

г. Москва, 2-й Южнопортовый проезд, 20А стр. 4

Аренда помещения под офис, 220,00 м²

495 000 руб. в месяц

г. Москва, 2-я Хуторская ул., 38А

г. Москва, 2-я Хуторская ул., 38А

г. Москва, 2-я Хуторская ул., 38А

Аренда помещения под офис, 220,70 м²

478 191 руб. в месяц

г. Москва, Маршала Прошлякова ул., 30

г. Москва, Маршала Прошлякова ул., 30

г. Москва, Маршала Прошлякова ул., 30

Аренда помещения под офис, 224,00 м²

476 000 руб. в месяц

г. Москва, 2-я Хуторская ул., 38А

г. Москва, 2-я Хуторская ул., 38А

г. Москва, 2-я Хуторская ул., 38А

Аренда помещения под офис, 219,40 м²

475 374 руб. в месяц