Санкт-Петербург,

Поиск недвижимости

Продажа помещения под склад

Продажа помещения под склад — г. Санкт-Петербург, Киевское ш., 8, Санкт-Петербург

Цена аренды

244 125 000 руб. / 4 150 125 $ / 3 417 750 € / 3 173 625 £

объект № 13 590 019

Площадь
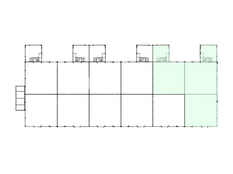
2 325,00 м²
Этаж
цоколь/1
Высота потолков
8,00 м

Здание

Всего этажей
1
Водоснабжение
есть
Электроснабжение
есть
Отопление
есть
Канализация
есть

Дополнительная информация


Складское помещение 2 325 кв. м в «Киевское-95». Прямая продажа, без комиссии. Объект на стадии активного строительства, готовность ко въезду уточняется по запросу. Направление: Юг. Шоссе: Киевское. Расстояние от КАД: 10 км. Характеристики:
- Класс: A; - Ворота: Ворота; - Тип склада: Light Industrial; - Высота потолков: 8 м; - Нагрузка на пол: 5 т/ кв.м; - Система пожаротушения: Внешние гидранты и внутренние пожарные краны; - Тип пола: Полы с антипылевым покрытием; - Шаг колонн: 6x24 м. Стоимость: 244 125 000 руб. Оформление сделки напрямую от собственника, без комиссии.
Готовы оперативно организовать просмотр в удобное время, предоставить PDF-презентацию и план. ID = c_1765947
Состояние объекта: отличное
Есть электроснабжение
Есть вентиляция
Температурный режим на складе: light industrial

Контактная информация

Bright Rich | CORFAC International

тел.: показать телефон

На карте

Фотографии объекта

Другие объекты этого собственника

Другие объекты этого собственника

г. Санкт-Петербург, Киевское ш., 8

г. Санкт-Петербург, Киевское ш., 8

г. Санкт-Петербург, Киевское ш., 8

Продажа помещения под склад, 2 325,00 м²

244 125 000 руб.

г. Санкт-Петербург, п. Шушары, Московское ш., 107 корп. 3 стр. 1

г. Санкт-Петербург, п. Шушары, Московское ш., 107 корп. 3 стр. 1

г. Санкт-Петербург, п. Шушары, Московское ш., 107 корп. 3 стр. 1

Продажа помещения под склад, 2 267,00 м²

226 700 000 руб.

Ленинградская обл., Колтушское городское поселение, 1-й проезд, 1, коммунально-складская зона Коркинская, 1

Ленинградская обл., Колтушское городское поселение, 1-й проезд, 1, коммунально-складская зона Коркинская, 1

Ленинградская обл., Колтушское городское поселение, 1-й проезд, 1, коммунально-складская зона Коркинская, 1

Продажа помещения под склад, 2 062,00 м²

214 791 674 руб.

Ленинградская обл., Новое Девяткино, ул Афонская, 11

Ленинградская обл., Новое Девяткино, ул Афонская, 11

Ленинградская обл., Новое Девяткино, ул Афонская, 11

Продажа помещения под склад, 2 399,00 м²

275 885 000 руб.

Ленинградская обл., Колтушское городское поселение, 1-й проезд, 1, коммунально-складская зона Коркинская, 1

Ленинградская обл., Колтушское городское поселение, 1-й проезд, 1, коммунально-складская зона Коркинская, 1

Ленинградская обл., Колтушское городское поселение, 1-й проезд, 1, коммунально-складская зона Коркинская, 1

Продажа помещения под склад, 2 030,00 м²

211 458 341 руб.

Ленинградская обл., Колтушское городское поселение, 1-й проезд, 1, коммунально-складская зона Коркинская, 1

Ленинградская обл., Колтушское городское поселение, 1-й проезд, 1, коммунально-складская зона Коркинская, 1

Ленинградская обл., Колтушское городское поселение, 1-й проезд, 1, коммунально-складская зона Коркинская, 1

Продажа помещения под склад, 1 892,00 м²

197 083 340 руб.

г. Санкт-Петербург, п. Петро-Славянка, Софийская ул., 116 корп. 5

г. Санкт-Петербург, п. Петро-Славянка, Софийская ул., 116 корп. 5

г. Санкт-Петербург, п. Петро-Славянка, Софийская ул., 116 корп. 5

Продажа помещения под склад, 1 922,70 м²

192 200 000 руб.

г. Санкт-Петербург, г. Колпино, Финляндская ул., 35

г. Санкт-Петербург, г. Колпино, Финляндская ул., 35

г. Санкт-Петербург, г. Колпино, Финляндская ул., 35

Продажа помещения под склад, 2 789,80 м²

299 817 500 руб.

Ленинградская обл., Колтушское городское поселение, 1-й проезд, 1, коммунально-складская зона Коркинская, 1

Ленинградская обл., Колтушское городское поселение, 1-й проезд, 1, коммунально-складская зона Коркинская, 1

Ленинградская обл., Колтушское городское поселение, 1-й проезд, 1, коммунально-складская зона Коркинская, 1

Продажа помещения под склад, 2 907,00 м²

302 812 510 руб.

г. Санкт-Петербург, Киевское ш., 8

г. Санкт-Петербург, Киевское ш., 8

г. Санкт-Петербург, Киевское ш., 8

Продажа помещения под склад, 2 904,00 м²

304 920 000 руб.