Санкт-Петербург,

Поиск недвижимости

Продажа помещения под склад

Продажа помещения под склад — г. Санкт-Петербург, г. Колпино, Финляндская ул., 35, Санкт-Петербург

Цена аренды

299 817 500 руб. / 5 096 898 $ / 4 197 445 € / 3 897 628 £

объект № 13 589 998

Район
Колпинский район

Площадь
2 789,80 м²
Этаж
цоколь/1
Высота потолков
6,00 м

Здание

Всего этажей
1
Водоснабжение
есть
Электроснабжение
есть
Отопление
есть
Канализация
есть

Дополнительная информация


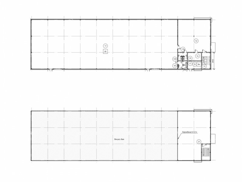
Складское помещение 2 789.8 кв. м в «ПСК На Финляндской». Прямая продажа, без комиссии. Строительство склада под клиента (Built-to-Suit). Готовность ко въезду от 7-ми месяцев. Направление: Юг. Шоссе: Софийская ул. Расстояние от КАД: 15 км. Характеристики:
- Класс: A; - Общая площадь мезонина: 402.5; - Ворота: Ворота на нулевой отметке; - Тип склада: Light Industrial; - Высота потолков: 6 м; - Нагрузка на пол: 5 т/ кв.м; - Система пожаротушения: Внешние гидранты и внутренние пожарные краны; - Тип пола: Полы с антипылевым покрытием; - Пожарная сигнализация: Да; - Шаг колонн: 18x66 м. Стоимость: 299 817 500 руб. Оформление сделки напрямую от собственника, без комиссии.
Готовы оперативно организовать просмотр в удобное время, предоставить PDF-презентацию и план. ID = c_1770597
Состояние объекта: отличное
Есть электроснабжение
Есть вентиляция
Температурный режим на складе: light industrial

Контактная информация

Bright Rich | CORFAC International

тел.: показать телефон

На карте

Фотографии объекта

Другие объекты этого собственника

Другие объекты этого собственника

Ленинградская обл., Колтушское городское поселение, 1-й проезд, 1, коммунально-складская зона Коркинская, 1

Ленинградская обл., Колтушское городское поселение, 1-й проезд, 1, коммунально-складская зона Коркинская, 1

Ленинградская обл., Колтушское городское поселение, 1-й проезд, 1, коммунально-складская зона Коркинская, 1

Продажа помещения под склад, 2 907,00 м²

302 812 510 руб.

г. Санкт-Петербург, Киевское ш., 8

г. Санкт-Петербург, Киевское ш., 8

г. Санкт-Петербург, Киевское ш., 8

Продажа помещения под склад, 2 904,00 м²

304 920 000 руб.

г. Санкт-Петербург, Киевское ш., 8

г. Санкт-Петербург, Киевское ш., 8

г. Санкт-Петербург, Киевское ш., 8

Продажа помещения под склад, 2 904,00 м²

304 920 000 руб.

Ленинградская обл., Колтушское городское поселение, 1-й проезд, 1, коммунально-складская зона Коркинская, 1

Ленинградская обл., Колтушское городское поселение, 1-й проезд, 1, коммунально-складская зона Коркинская, 1

Ленинградская обл., Колтушское городское поселение, 1-й проезд, 1, коммунально-складская зона Коркинская, 1

Продажа помещения под склад, 3 045,00 м²

317 187 511 руб.

Ленинградская обл., Колтушское городское поселение, 1-й проезд, 1, коммунально-складская зона Коркинская, 1

Ленинградская обл., Колтушское городское поселение, 1-й проезд, 1, коммунально-складская зона Коркинская, 1

Ленинградская обл., Колтушское городское поселение, 1-й проезд, 1, коммунально-складская зона Коркинская, 1

Продажа помещения под склад, 3 093,00 м²

322 187 511 руб.

Ленинградская обл., Новое Девяткино, ул Афонская, 11

Ленинградская обл., Новое Девяткино, ул Афонская, 11

Ленинградская обл., Новое Девяткино, ул Афонская, 11

Продажа помещения под склад, 2 399,00 м²

275 885 000 руб.

г. Санкт-Петербург, п. Петро-Славянка, Софийская ул., 116 корп. 5

г. Санкт-Петербург, п. Петро-Славянка, Софийская ул., 116 корп. 5

г. Санкт-Петербург, п. Петро-Славянка, Софийская ул., 116 корп. 5

Продажа помещения под склад, 3 010,30 м²

331 100 000 руб.

Ленинградская обл., Новое Девяткино, ул Афонская, 11

Ленинградская обл., Новое Девяткино, ул Афонская, 11

Ленинградская обл., Новое Девяткино, ул Афонская, 11

Продажа помещения под склад, 2 880,00 м²

331 200 000 руб.

г. Санкт-Петербург, Пушкин, Индустриальный парк Киевское 95, 14

г. Санкт-Петербург, Пушкин, Индустриальный парк Киевское 95, 14

г. Санкт-Петербург, Пушкин, Индустриальный парк Киевское 95, 14

Продажа помещения под склад, 2 880,00 м²

340 000 013 руб.

г. Санкт-Петербург, Киевское ш., 8

г. Санкт-Петербург, Киевское ш., 8

г. Санкт-Петербург, Киевское ш., 8

Продажа помещения под склад, 2 325,00 м²

244 125 000 руб.