Санкт-Петербург,

Поиск недвижимости

Продажа помещения под офис

Объект находится в архиве и неактивен.

Продажа помещения под офис — г. Санкт-Петербург, Конторская ул., 15 лит. Б, Е, Д, Санкт-Петербург

Цена аренды

279 000 000 руб. / 4 743 000 $ / 3 906 000 € / 3 627 000 £


Ежемесячный платеж по кредиту: 4097675.07 руб.

Запрос на кредит

К большому сожалению сделки, по покупке нежилого объекта под его же залог на сегодня являются единичными и уникальными. На Западе предпринимателю не придет в голову инвестировать полную стоимость в коммерческую недвижимость. Часть суммы традиционно расходуется на оформление коммерческой ипотеки и первый взнос по кредиту, остальное на развитие бизнеса. По данным экспертов спрос на ипотечное кредитование на коммерческие объекты недвижимости постоянно растет. Прежде всего, коммерческая ипотека дает прекрасную возможность перевести арендуемую площадь в собственность.

На сегодняшний день есть возможность купить коммерческую недвижимость с первым взносом от 10% на срок до 20 лет.

Напишите основные параметры , понравившегося Вам объекта – его стоимость, сумму кредита и мы рассчитаем возможные варианты.


объект № 13 589 968

Район
Красногвардейский район
Метро, ориентир
м. Новочеркасская — 1,9 км

Площадь
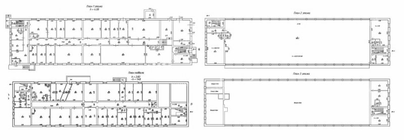
2 729,00 м²
Этаж
цоколь/2
Высота потолков
5,00 м

Здание

Класс
B
Всего этажей
2
Лифт
есть

Дополнительная информация


Офисное помещение 2 729 кв. м в бизнес-центре «Конторская 15» от собственника.

Район: Красногвардейский. Характеристики:
- Класс: B; - Реконструкция: Да; - Арендопригодная площадь: 2782; - Код налоговой: 06; - Высота потолков: 5.0 м. Стоимость: 279 000 000 руб. Прямой договор с собственником. Без комиссии и скрытых платежей. Оперативно организуем просмотр и предоставим необходимую информацию. ID = c_694501
Состояние объекта: отличное
Наличие предприятий общепита в здании: есть
Есть вентиляция

Контактная информация

Bright Rich | CORFAC International

тел.: показать телефон

На карте

Фотографии объекта

Похожие объекты

Похожие объекты

Конституции пл.

Конституции пл.

Конституции пл.

Продажа универсального помещения, 2 690,00 м²

275 000 000 руб.

Инструментальная л.

Инструментальная л.

Инструментальная л.

Продажа универсального помещения, 3 100,00 м²

270 000 000 руб.

г. Санкт-Петербург, пр. Испытателей, 30 корп. 2 лит. А

г. Санкт-Петербург, пр. Испытателей, 30 корп. 2 лит. А

г. Санкт-Петербург, пр. Испытателей, 30 корп. 2 лит. А

Продажа помещения под офис, 2 285,40 м²

251 394 000 руб.

г. Санкт-Петербург, пр-кт Большой В.О., 78

г. Санкт-Петербург, пр-кт Большой В.О., 78

г. Санкт-Петербург, пр-кт Большой В.О., 78

Продажа помещения под офис, 2 245,00 м²

249 000 000 руб.

Санкт-Петербург, Нефтяная дорога

Санкт-Петербург, Нефтяная дорога

Санкт-Петербург, Нефтяная дорога

Продажа помещения под магазин, 2 000,00 м²

240 000 000 руб.

Санкт-Петербург, ул. Мебельная

Санкт-Петербург, ул. Мебельная

Санкт-Петербург, ул. Мебельная

Продажа универсального помещения, 3 508,00 м²

350 000 000 руб.

Санкт-Петербург, ул. Мебельная

Санкт-Петербург, ул. Мебельная

Санкт-Петербург, ул. Мебельная

Продажа помещения под магазин, 3 508,00 м²

350 000 000 руб.

Санкт-Петербург, Нефтяная дорога

Санкт-Петербург, Нефтяная дорога

Санкт-Петербург, Нефтяная дорога

Продажа помещения под магазин, 3 000,00 м²

360 000 000 руб.