Санкт-Петербург,

Поиск недвижимости

Продажа помещения под офис

Продажа помещения под офис — г. Санкт-Петербург, пр-кт Большой В.О., 78, Санкт-Петербург

Цена аренды

249 000 000 руб. / 4 233 000 $ / 3 486 000 € / 3 237 000 £


Ежемесячный платеж по кредиту: 3657064.85 руб.

Запрос на кредит

К большому сожалению сделки, по покупке нежилого объекта под его же залог на сегодня являются единичными и уникальными. На Западе предпринимателю не придет в голову инвестировать полную стоимость в коммерческую недвижимость. Часть суммы традиционно расходуется на оформление коммерческой ипотеки и первый взнос по кредиту, остальное на развитие бизнеса. По данным экспертов спрос на ипотечное кредитование на коммерческие объекты недвижимости постоянно растет. Прежде всего, коммерческая ипотека дает прекрасную возможность перевести арендуемую площадь в собственность.

На сегодняшний день есть возможность купить коммерческую недвижимость с первым взносом от 10% на срок до 20 лет.

Напишите основные параметры , понравившегося Вам объекта – его стоимость, сумму кредита и мы рассчитаем возможные варианты.


объект № 13 589 937

Район
Василеостровский район
Метро, ориентир
Горный институт — 7 155,9 км

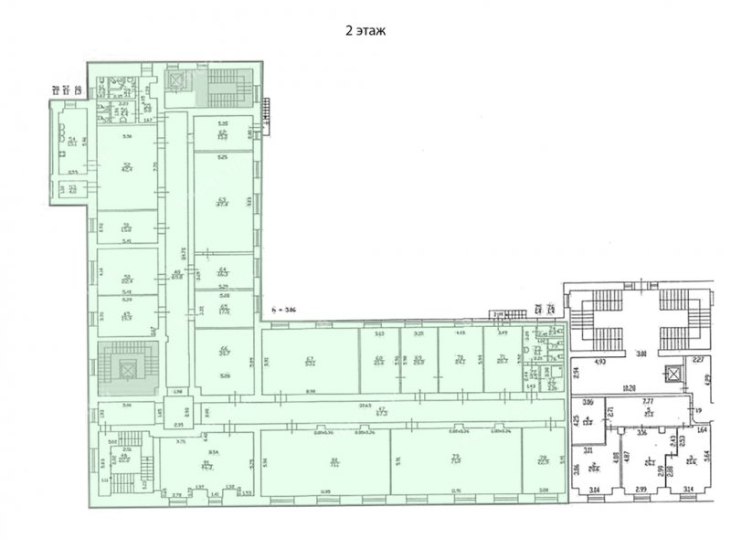
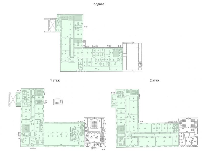
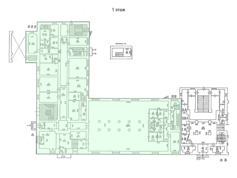
Площадь
2 245,00 м²
Этаж
цоколь/5

Здание

Класс
B
Всего этажей
5
Лифт
есть

Дополнительная информация


Офисное помещение 2 245 кв. м в бизнес-центре «Большой проспект ВО 78» от собственника. Объект скоро освободится. Успейте забронировать на выгодных условиях. Готовность ко въезду уточняется по запросу. Район: Василеостровский. Характеристики:
- Класс: B; - Арендопригодная площадь: 2245; - Код налоговой: 01; - Наличие лифта: Нет. Стоимость: 249 000 000 руб. Прямой договор с собственником. Без комиссии и скрытых платежей. Оперативно организуем просмотр и предоставим необходимую информацию. ID = c_1766643
Состояние объекта: отличное
Наличие предприятий общепита в здании: есть
Есть системы кондиционирования
Есть вентиляция

Контактная информация

Bright Rich | CORFAC International

тел.: показать телефон

На карте

Фотографии объекта

Другие объекты этого собственника

Другие объекты этого собственника

г. Санкт-Петербург, Коломяжский пр-кт, 19 лит. А

г. Санкт-Петербург, Коломяжский пр-кт, 19 лит. А

г. Санкт-Петербург, Коломяжский пр-кт, 19 лит. А

Продажа помещения под офис, 1 322,37 м²

536 932 100 руб.

г. Санкт-Петербург, Коломяжский пр-кт, 19 лит. А

г. Санкт-Петербург, Коломяжский пр-кт, 19 лит. А

г. Санкт-Петербург, Коломяжский пр-кт, 19 лит. А

Продажа помещения под офис, 702,54 м²

276 157 238 руб.

г. Санкт-Петербург, Коломяжский пр-кт, 19 лит. А

г. Санкт-Петербург, Коломяжский пр-кт, 19 лит. А

г. Санкт-Петербург, Коломяжский пр-кт, 19 лит. А

Продажа помещения под офис, 1 881,44 м²

738 601 238 руб.

г. Санкт-Петербург, Коломяжский пр-кт, 19 лит. А

г. Санкт-Петербург, Коломяжский пр-кт, 19 лит. А

г. Санкт-Петербург, Коломяжский пр-кт, 19 лит. А

Продажа помещения под офис, 650,79 м²

255 701 900 руб.

г. Санкт-Петербург, Коломяжский пр-кт, 19 лит. А

г. Санкт-Петербург, Коломяжский пр-кт, 19 лит. А

г. Санкт-Петербург, Коломяжский пр-кт, 19 лит. А

Продажа помещения под офис, 409,89 м²

159 005 000 руб.

г. Санкт-Петербург, Черняховского ул., 6/10

г. Санкт-Петербург, Черняховского ул., 6/10

г. Санкт-Петербург, Черняховского ул., 6/10

Продажа помещения под офис, 877,00 м²

125 000 000 руб.

г. Санкт-Петербург, г. Красное Село, Восстановления ул., 19

г. Санкт-Петербург, г. Красное Село, Восстановления ул., 19

г. Санкт-Петербург, г. Красное Село, Восстановления ул., 19

Продажа помещения под офис, 558,01 м²

69 308 243 руб.

г. Санкт-Петербург, ул 2-я Жерновская

г. Санкт-Петербург, ул 2-я Жерновская

г. Санкт-Петербург, ул 2-я Жерновская

Продажа помещения под офис, 419,63 м²

79 729 700 руб.

г. Санкт-Петербург, Гранитная ул.

г. Санкт-Петербург, Гранитная ул.

г. Санкт-Петербург, Гранитная ул.

Продажа помещения под офис, 125,39 м²

30 093 600 руб.

г. Санкт-Петербург, г. Красное Село, Восстановления ул., 19

г. Санкт-Петербург, г. Красное Село, Восстановления ул., 19

г. Санкт-Петербург, г. Красное Село, Восстановления ул., 19

Продажа помещения под офис, 670,57 м²

176 584 670 руб.