Санкт-Петербург,

Поиск недвижимости

Продажа помещения под офис

Продажа помещения под офис — г. Санкт-Петербург, Гранитная ул., Санкт-Петербург

Цена аренды

65 092 800 руб. / 1 106 578 $ / 911 299 € / 846 206 £


Ежемесячный платеж по кредиту: 956018.44 руб.

Запрос на кредит

К большому сожалению сделки, по покупке нежилого объекта под его же залог на сегодня являются единичными и уникальными. На Западе предпринимателю не придет в голову инвестировать полную стоимость в коммерческую недвижимость. Часть суммы традиционно расходуется на оформление коммерческой ипотеки и первый взнос по кредиту, остальное на развитие бизнеса. По данным экспертов спрос на ипотечное кредитование на коммерческие объекты недвижимости постоянно растет. Прежде всего, коммерческая ипотека дает прекрасную возможность перевести арендуемую площадь в собственность.

На сегодняшний день есть возможность купить коммерческую недвижимость с первым взносом от 10% на срок до 20 лет.

Напишите основные параметры , понравившегося Вам объекта – его стоимость, сумму кредита и мы рассчитаем возможные варианты.


объект № 13 589 915

Район
Красногвардейский район
Метро, ориентир
м. Ладожская — 1,0 км

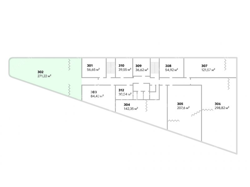
Площадь
271,22 м²
Этаж
3/4

Здание

Класс
A
Всего этажей
4
Лифт
есть

Дополнительная информация


Офисное помещение 271.2 кв. м в бизнес-центре «Smart Гранитная» от собственника. Объект на стадии активного строительства, готовность ко въезду уточняется по запросу. Район: Красногвардейский. Характеристики:
- Класс: A; - Арендопригодная площадь: 4760; - Код налоговой: 06; - Размер типового этажа: 1562; - Наличие лифта: Есть. Стоимость: 65 092 800 руб. Прямой договор с собственником. Без комиссии и скрытых платежей. Оперативно организуем просмотр и предоставим необходимую информацию. ID = c_1760457
Состояние объекта: отличное
Наличие предприятий общепита в здании: есть
Есть системы кондиционирования
Есть вентиляция

Контактная информация

Bright Rich | CORFAC International

тел.: показать телефон

На карте

Фотографии объекта

Другие объекты этого собственника

Другие объекты этого собственника

г. Санкт-Петербург, Светлановский пр.

г. Санкт-Петербург, Светлановский пр.

г. Санкт-Петербург, Светлановский пр.

Продажа помещения под офис, 233,10 м²

63 241 470 руб.

г. Санкт-Петербург, Гранитная ул.

г. Санкт-Петербург, Гранитная ул.

г. Санкт-Петербург, Гранитная ул.

Продажа помещения под офис, 261,29 м²

62 709 600 руб.

г. Санкт-Петербург, Воскресенская наб., 4

г. Санкт-Петербург, Воскресенская наб., 4

г. Санкт-Петербург, Воскресенская наб., 4

Продажа помещения под офис, 262,70 м²

68 000 000 руб.

г. Санкт-Петербург, Обводного канала наб., 118 лит. АУ

г. Санкт-Петербург, Обводного канала наб., 118 лит. АУ

г. Санкт-Петербург, Обводного канала наб., 118 лит. АУ

Продажа помещения под офис, 218,00 м²

62 130 000 руб.

г. Санкт-Петербург, ул 2-я Жерновская

г. Санкт-Петербург, ул 2-я Жерновская

г. Санкт-Петербург, ул 2-я Жерновская

Продажа помещения под офис, 317,50 м²

68 068 075 руб.

г. Санкт-Петербург, ул 2-я Жерновская

г. Санкт-Петербург, ул 2-я Жерновская

г. Санкт-Петербург, ул 2-я Жерновская

Продажа помещения под офис, 197,84 м²

69 244 000 руб.

г. Санкт-Петербург, Гранитная ул.

г. Санкт-Петербург, Гранитная ул.

г. Санкт-Петербург, Гранитная ул.

Продажа помещения под офис, 190,00 м²

69 825 000 руб.

г. Санкт-Петербург, Обводного канала наб., 118 лит. АУ

г. Санкт-Петербург, Обводного канала наб., 118 лит. АУ

г. Санкт-Петербург, Обводного канала наб., 118 лит. АУ

Продажа помещения под офис, 248,00 м²

70 184 000 руб.

г. Санкт-Петербург, Гранитная ул.

г. Санкт-Петербург, Гранитная ул.

г. Санкт-Петербург, Гранитная ул.

Продажа помещения под офис, 298,82 м²

71 716 800 руб.

г. Санкт-Петербург, ул 2-я Жерновская

г. Санкт-Петербург, ул 2-я Жерновская

г. Санкт-Петербург, ул 2-я Жерновская

Продажа помещения под офис, 340,55 м²

72 077 300 руб.