Санкт-Петербург,

Поиск недвижимости

Продажа помещения под офис

Продажа помещения под офис — г. Санкт-Петербург, г. Красное Село, Восстановления ул., 19, Санкт-Петербург

Цена аренды

28 440 000 руб. / 483 480 $ / 398 160 € / 369 720 £


Ежемесячный платеж по кредиту: 417698.49 руб.

Запрос на кредит

К большому сожалению сделки, по покупке нежилого объекта под его же залог на сегодня являются единичными и уникальными. На Западе предпринимателю не придет в голову инвестировать полную стоимость в коммерческую недвижимость. Часть суммы традиционно расходуется на оформление коммерческой ипотеки и первый взнос по кредиту, остальное на развитие бизнеса. По данным экспертов спрос на ипотечное кредитование на коммерческие объекты недвижимости постоянно растет. Прежде всего, коммерческая ипотека дает прекрасную возможность перевести арендуемую площадь в собственность.

На сегодняшний день есть возможность купить коммерческую недвижимость с первым взносом от 10% на срок до 20 лет.

Напишите основные параметры , понравившегося Вам объекта – его стоимость, сумму кредита и мы рассчитаем возможные варианты.


объект № 13 589 912

Район
Красносельский район

Площадь
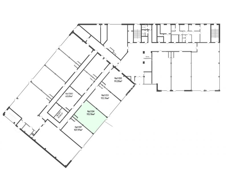
113,76 м²
Этаж
1/3

Здание

Класс
B+
Всего этажей
3
Лифт
есть

Дополнительная информация


Офисное помещение 113.8 кв. м в бизнес-центре «Smart Восстановления». Прямая продажа, без комиссии. Объект на стадии активного строительства, готовность ко въезду уточняется по запросу. Район: Красносельский. Характеристики:
- Класс: B+; - Арендопригодная площадь: 5440; - Код налоговой: 07; - Размер типового этажа: 3200; - Высота потолков: 5 м, 7 м; - Наличие лифта: Есть. Стоимость: 28 440 000 руб. Оформление сделки напрямую от собственника, без комиссии.
Готовы оперативно организовать просмотр в удобное время, предоставить PDF-презентацию и план. ID = c_761666
Состояние объекта: отличное
Наличие предприятий общепита в здании: есть
Есть системы кондиционирования
Есть вентиляция

Контактная информация

Bright Rich | CORFAC International

тел.: показать телефон

На карте

Фотографии объекта

Другие объекты этого собственника

Другие объекты этого собственника

г. Санкт-Петербург, г. Красное Село, Восстановления ул., 19

г. Санкт-Петербург, г. Красное Село, Восстановления ул., 19

г. Санкт-Петербург, г. Красное Село, Восстановления ул., 19

Продажа помещения под офис, 113,76 м²

28 440 000 руб.

г. Санкт-Петербург, ул 2-я Жерновская

г. Санкт-Петербург, ул 2-я Жерновская

г. Санкт-Петербург, ул 2-я Жерновская

Продажа помещения под офис, 119,05 м²

28 572 000 руб.

г. Санкт-Петербург, ул 2-я Жерновская

г. Санкт-Петербург, ул 2-я Жерновская

г. Санкт-Петербург, ул 2-я Жерновская

Продажа помещения под офис, 130,97 м²

27 944 700 руб.

г. Санкт-Петербург, ул 2-я Жерновская

г. Санкт-Петербург, ул 2-я Жерновская

г. Санкт-Петербург, ул 2-я Жерновская

Продажа помещения под офис, 132,51 м²

27 827 100 руб.

г. Санкт-Петербург, Светлановский пр.

г. Санкт-Петербург, Светлановский пр.

г. Санкт-Петербург, Светлановский пр.

Продажа помещения под офис, 101,49 м²

27 706 770 руб.

г. Санкт-Петербург, г. Красное Село, Восстановления ул., 19

г. Санкт-Петербург, г. Красное Село, Восстановления ул., 19

г. Санкт-Петербург, г. Красное Село, Восстановления ул., 19

Продажа помещения под офис, 107,91 м²

26 977 500 руб.

г. Санкт-Петербург, ул 2-я Жерновская

г. Санкт-Петербург, ул 2-я Жерновская

г. Санкт-Петербург, ул 2-я Жерновская

Продажа помещения под офис, 141,92 м²

30 221 075 руб.

г. Санкт-Петербург, Гранитная ул.

г. Санкт-Петербург, Гранитная ул.

г. Санкт-Петербург, Гранитная ул.

Продажа помещения под офис, 106,19 м²

26 547 500 руб.

г. Санкт-Петербург, Гранитная ул.

г. Санкт-Петербург, Гранитная ул.

г. Санкт-Петербург, Гранитная ул.

Продажа помещения под офис, 121,57 м²

30 392 500 руб.

г. Санкт-Петербург, г. Красное Село, Восстановления ул., 19

г. Санкт-Петербург, г. Красное Село, Восстановления ул., 19

г. Санкт-Петербург, г. Красное Село, Восстановления ул., 19

Продажа помещения под офис, 113,40 м²

30 618 000 руб.