Санкт-Петербург,

Поиск недвижимости

Аренда помещения под офис

Аренда помещения под офис — г. Санкт-Петербург, Выборгская наб., 55 корп. 3 лит. А, Санкт-Петербург

Цена аренды

756 000 руб. / 12 852 $ / 10 584 € / 9 828 £

объект № 13 589 549

Район
Выборгский район
Метро, ориентир
м. Лесная — 1,2 км

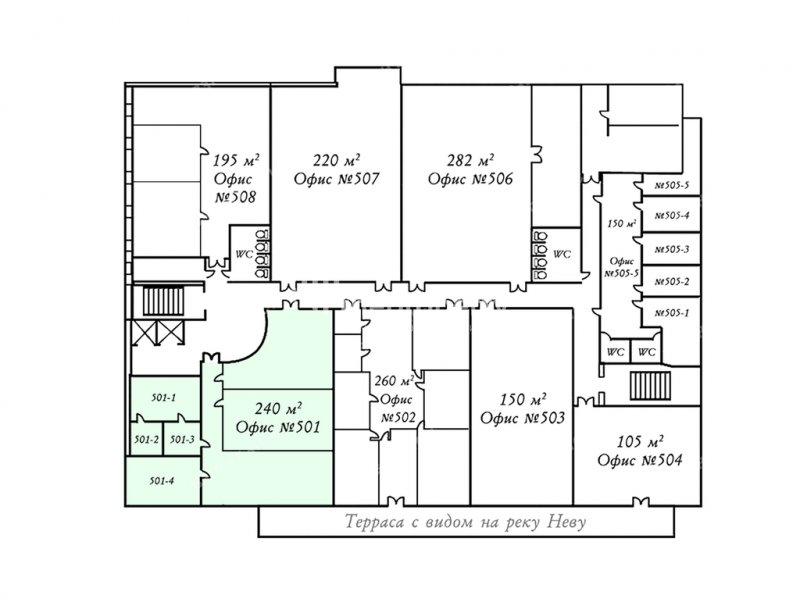
Площадь
240,00 м²
Этаж
5/8
Интернет
есть

Здание

Класс
A
Всего этажей
8
Лифт
есть

Дополнительная информация


Офисное помещение 240 кв. м в бизнес-центре Gregory's Palace от собственника.

Район: Выборгский. Ближайшие станции метро: Лесная. Характеристики:
- Класс: A; - Код налоговой: 02; - Арендопригодная площадь: 11797.75; - Высота потолков: 3.4 м; - Кол-во мест наземного паркинга: 110; - Интернет-провайдеры: Авантел. Арендная ставка: 3 150 руб./кв. м в месяц. Финансовые условия: - В стоимость включено: OPEX, Коммунальные услуги, Уборка; - Оплачивается отдельно: Интернет, Телефония. Прямой договор с собственником. Без комиссии и скрытых платежей. Оперативно организуем просмотр и предоставим необходимую информацию. ID = c_709475
Состояние объекта: отличное
Количество предоставляемых парковочных мест: 110
Наличие предприятий общепита в здании: есть
Есть системы кондиционирования
Есть вентиляция

Контактная информация

Bright Rich | CORFAC International

тел.: показать телефон

На карте

Фотографии объекта

Другие объекты этого собственника

Другие объекты этого собственника

г. Санкт-Петербург, Пулковское ш., 40 корп. 4

г. Санкт-Петербург, Пулковское ш., 40 корп. 4

г. Санкт-Петербург, Пулковское ш., 40 корп. 4

Аренда помещения под офис, 295,92 м²

763 474 руб. в месяц

г. Санкт-Петербург, Малая Морская ул., 23 лит. А

г. Санкт-Петербург, Малая Морская ул., 23 лит. А

г. Санкт-Петербург, Малая Морская ул., 23 лит. А

Аренда помещения под офис, 244,00 м²

766 160 руб. в месяц

г. Санкт-Петербург, Чайковского ул., 29 лит. А

г. Санкт-Петербург, Чайковского ул., 29 лит. А

г. Санкт-Петербург, Чайковского ул., 29 лит. А

Аренда помещения под офис, 212,00 м²

742 000 руб. в месяц

г. Санкт-Петербург, Державинский пер., 5

г. Санкт-Петербург, Державинский пер., 5

г. Санкт-Петербург, Державинский пер., 5

Аренда помещения под офис, 311,00 м²

777 500 руб. в месяц

г. Санкт-Петербург, В.О. 7-я линия, 44

г. Санкт-Петербург, В.О. 7-я линия, 44

г. Санкт-Петербург, В.О. 7-я линия, 44

Аренда помещения под офис, 265,00 м²

795 000 руб. в месяц

г. Санкт-Петербург, 2-я Советская ул., 17 лит. А

г. Санкт-Петербург, 2-я Советская ул., 17 лит. А

г. Санкт-Петербург, 2-я Советская ул., 17 лит. А

Аренда помещения под офис, 235,90 м²

707 700 руб. в месяц

г. Санкт-Петербург, Выборгская наб., 55 корп. 3 лит. А

г. Санкт-Петербург, Выборгская наб., 55 корп. 3 лит. А

г. Санкт-Петербург, Выборгская наб., 55 корп. 3 лит. А

Аренда помещения под офис, 260,00 м²

820 014 руб. в месяц

г. Санкт-Петербург, Выборгская наб., 55 корп. 3 лит. А

г. Санкт-Петербург, Выборгская наб., 55 корп. 3 лит. А

г. Санкт-Петербург, Выборгская наб., 55 корп. 3 лит. А

Аренда помещения под офис, 220,00 м²

660 000 руб. в месяц

г. Санкт-Петербург, Литейный пр., 26 лит. А

г. Санкт-Петербург, Литейный пр., 26 лит. А

г. Санкт-Петербург, Литейный пр., 26 лит. А

Аренда помещения под офис, 263,30 м²

868 890 руб. в месяц

г. Санкт-Петербург, Синопская наб., 52 лит. А

г. Санкт-Петербург, Синопская наб., 52 лит. А

г. Санкт-Петербург, Синопская наб., 52 лит. А

Аренда помещения под офис, 275,10 м²

632 730 руб. в месяц