Санкт-Петербург,

Поиск недвижимости

Аренда помещения под офис

Аренда помещения под офис — г. Санкт-Петербург, Выборгская наб., 55 корп. 3 лит. А, Санкт-Петербург

Цена аренды

629 994 руб. / 10 710 $ / 8 820 € / 8 190 £

объект № 13 589 541

Район
Выборгский район
Метро, ориентир
м. Лесная — 1,2 км

Площадь
199,00 м²
Этаж
6/8
Интернет
есть

Здание

Класс
A
Всего этажей
8
Лифт
есть

Дополнительная информация


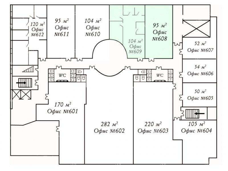
Офисное помещение 199 кв. м в бизнес-центре Gregory's Palace от собственника.

Район: Выборгский. Ближайшие станции метро: Лесная. Характеристики:
- Класс: A; - Код налоговой: 02; - Арендопригодная площадь: 11797.75; - Высота потолков: 3.4 м; - Кол-во мест наземного паркинга: 110; - Интернет-провайдеры: Авантел. Арендная ставка: 3 165.8 руб./кв. м в месяц. Финансовые условия: - В стоимость включено: OPEX, Коммунальные услуги, Уборка; - Оплачивается отдельно: Интернет, Телефония. Прямой договор с собственником. Без комиссии и скрытых платежей. Оперативно организуем просмотр и предоставим необходимую информацию. ID = c_1761029
Состояние объекта: отличное
Количество предоставляемых парковочных мест: 110
Наличие предприятий общепита в здании: есть

Контактная информация

Bright Rich | CORFAC International

тел.: показать телефон

На карте

Фотографии объекта

Другие объекты этого собственника

Другие объекты этого собственника

г. Санкт-Петербург, Выборгская наб., 55 корп. 3 лит. А

г. Санкт-Петербург, Выборгская наб., 55 корп. 3 лит. А

г. Санкт-Петербург, Выборгская наб., 55 корп. 3 лит. А

Аренда помещения под офис, 208,00 м²

630 011 руб. в месяц

г. Санкт-Петербург, Выборгская наб., 55 корп. 3 лит. А

г. Санкт-Петербург, Выборгская наб., 55 корп. 3 лит. А

г. Санкт-Петербург, Выборгская наб., 55 корп. 3 лит. А

Аренда помещения под офис, 220,00 м²

660 000 руб. в месяц

г. Санкт-Петербург, Киришская ул., 2 лит. А

г. Санкт-Петербург, Киришская ул., 2 лит. А

г. Санкт-Петербург, Киришская ул., 2 лит. А

Аренда помещения под офис, 155,00 м²

588 008 руб. в месяц

г. Санкт-Петербург, Пулковское ш., 40 корп. 4

г. Санкт-Петербург, Пулковское ш., 40 корп. 4

г. Санкт-Петербург, Пулковское ш., 40 корп. 4

Аренда помещения под офис, 229,82 м²

587 420 руб. в месяц

г. Санкт-Петербург, Дивенская ул., 1

г. Санкт-Петербург, Дивенская ул., 1

г. Санкт-Петербург, Дивенская ул., 1

Аренда помещения под офис, 198,60 м²

687 156 руб. в месяц

г. Санкт-Петербург, Суворовский пр., 10/16

г. Санкт-Петербург, Суворовский пр., 10/16

г. Санкт-Петербург, Суворовский пр., 10/16

Аренда помещения под офис, 150,00 м²

570 000 руб. в месяц

г. Санкт-Петербург, Невский пр., 114-116 лит. А

г. Санкт-Петербург, Невский пр., 114-116 лит. А

г. Санкт-Петербург, Невский пр., 114-116 лит. А

Аренда помещения под офис, 186,90 м²

560 700 руб. в месяц

г. Санкт-Петербург, В.О. 8-я линия, 25

г. Санкт-Петербург, В.О. 8-я линия, 25

г. Санкт-Петербург, В.О. 8-я линия, 25

Аренда помещения под офис, 145,00 м²

705 005 руб. в месяц

г. Санкт-Петербург, Чайковского ул., 29 лит. А

г. Санкт-Петербург, Чайковского ул., 29 лит. А

г. Санкт-Петербург, Чайковского ул., 29 лит. А

Аренда помещения под офис, 220,00 м²

550 000 руб. в месяц

г. Санкт-Петербург, Выборгская наб., 55 корп. 3 лит. А

г. Санкт-Петербург, Выборгская наб., 55 корп. 3 лит. А

г. Санкт-Петербург, Выборгская наб., 55 корп. 3 лит. А

Аренда помещения под офис, 170,00 м²

540 005 руб. в месяц