Москва,

Поиск недвижимости

Аренда помещения под офис

Аренда помещения под офис — г. Москва, Верейская ул., 29, Москва

Цена аренды

660 889 руб. / 11 235 $ / 9 252 € / 8 592 £

объект № 13 587 078

Район
ЗАО, Можайский район
Метро, ориентир
м. Кунцевская — 2,4 км

Площадь
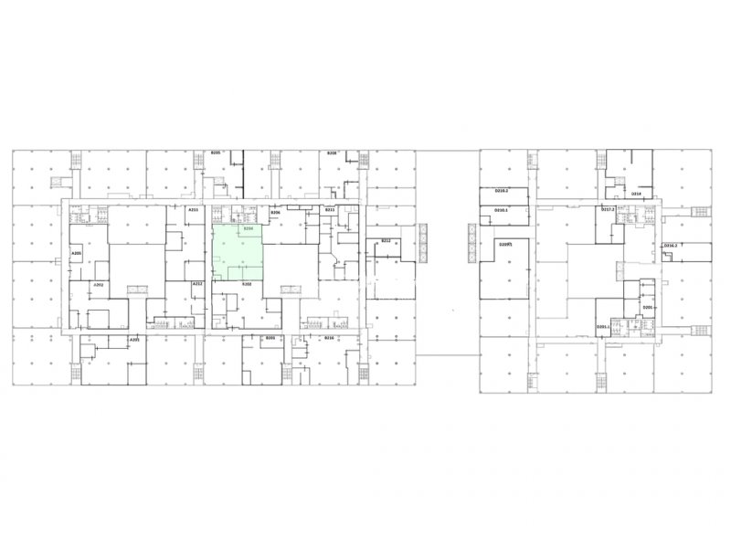
277,30 м²
Этаж
2/7

Здание

Класс
B+
Всего этажей
7
Лифт
есть

Дополнительная информация


Офисное помещение 277.3 кв. м в бизнес-центре «Верейская Плаза 3».

Округ: Западный (ЗАО). Район: Можайский. Ближайшие станции метро: Кунцевская, Аминьевская, Давыдково. Характеристики:
- Класс: B+; - Арендопригодная площадь: 92650; - Код налоговой: 31; - Высота потолков: 3.6 м; - Наличие лифта: Есть; - Кол-во мест наземного паркинга: 752; - Кол-во мест подземного паркинга: 100; - Шаг колонн: 6x6 м. Арендная ставка: 28 599 руб./кв. м в год. Финансовые условия: - В стоимость включено: OPEX, НДС; - Оплачивается отдельно: Интернет, Коммунальные услуги, Телефония, Уборка, Электроэнергия. Без комиссии и скрытых платежей для арендатора.
Готовы оперативно организовать просмотр в удобное время, предоставить PDF-презентацию и план. ID = c_1764504
Состояние объекта: отличное
Количество предоставляемых парковочных мест: 852
Наличие предприятий общепита в здании: есть
Есть системы кондиционирования
Есть вентиляция

Контактная информация

Bright Rich | CORFAC International

тел.: показать телефон

На карте

Фотографии объекта

Другие объекты этого собственника

Другие объекты этого собственника

г. Москва, Ракетный б-р, 16

г. Москва, Ракетный б-р, 16

г. Москва, Ракетный б-р, 16

Аренда помещения под офис, 333,90 м²

667 800 руб. в месяц

г. Москва, 2-я Хуторская ул., 38А

г. Москва, 2-я Хуторская ул., 38А

г. Москва, 2-я Хуторская ул., 38А

Аренда помещения под офис, 301,50 м²

653 260 руб. в месяц

г. Москва, Верейская ул., 29

г. Москва, Верейская ул., 29

г. Москва, Верейская ул., 29

Аренда помещения под офис, 265,00 м²

675 750 руб. в месяц

г. Москва, ул Смольная, 24Д

г. Москва, ул Смольная, 24Д

г. Москва, ул Смольная, 24Д

Аренда помещения под офис, 295,00 м²

688 324 руб. в месяц

г. Москва, 2-я Хуторская ул., 38А

г. Москва, 2-я Хуторская ул., 38А

г. Москва, 2-я Хуторская ул., 38А

Аренда помещения под офис, 318,02 м²

689 054 руб. в месяц

г. Москва, 2-я Хуторская ул., 38А

г. Москва, 2-я Хуторская ул., 38А

г. Москва, 2-я Хуторская ул., 38А

Аренда помещения под офис, 271,10 м²

587 392 руб. в месяц

г. Москва, 2-я Хуторская ул., 38А

г. Москва, 2-я Хуторская ул., 38А

г. Москва, 2-я Хуторская ул., 38А

Аренда помещения под офис, 339,75 м²

736 136 руб. в месяц

г. Москва, Каширское ш., 3

г. Москва, Каширское ш., 3

г. Москва, Каширское ш., 3

Аренда помещения под офис, 242,00 м²

750 006 руб. в месяц

г. Москва, Верейская ул., 29

г. Москва, Верейская ул., 29

г. Москва, Верейская ул., 29

Аренда помещения под офис, 294,30 м²

750 465 руб. в месяц

г. Москва, Верейская ул., 29

г. Москва, Верейская ул., 29

г. Москва, Верейская ул., 29

Аренда помещения под офис, 235,50 м²

561 267 руб. в месяц