Санкт-Петербург,

Поиск недвижимости

Аренда помещения под склад

Аренда помещения под склад — г. Колпино, ул. Финляндская, Санкт-Петербург

Цена аренды

1 200 руб. / 20 $ / 17 € / 16 £

Контакты:

"1000 складов"

тел.: показать телефон

объект № 13 586 575

Район
Колпинский район
Метро, ориентир
м. Купчино

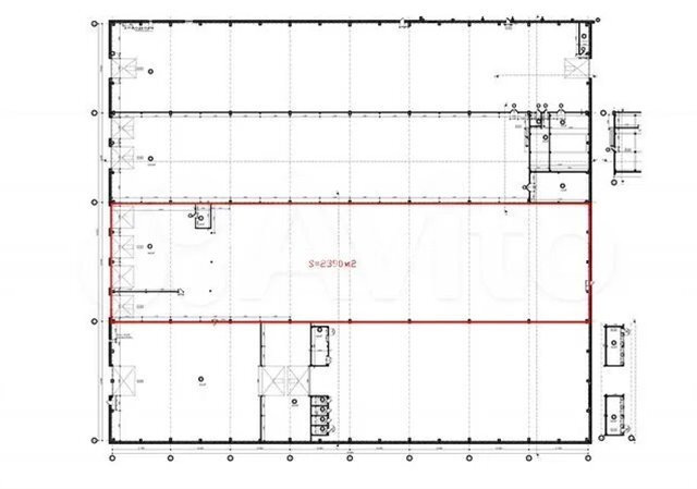
Площадь
2 390,00 м²
Этаж
не указан/не указано
Телефония
есть

Здание

Всего этажей
не указано
Водоснабжение
есть
Электроснабжение
есть
Отопление
есть
Канализация
есть

Дополнительная информация


Код объекта: 19351 Колпинский район, г. Колпино, ул. Финляндская, м. Купчино
Аренда производственного помещения 2390 м² с кран-балками 2,5 - 10 т
Сдается в аренду производственно-складское помещение, общая площадь - 2390 м², в промышленной зоне «Ижорские Заводы». Рабочая высота потолков – 9,3 м. Наличие кран-балок – г/п 2,5 – 10тн. (высота до крюка 6 – 7 м). Пол с антипылевым покрытием, бетон. Допустимая нагрузка на пол – 8 тн/м². Наличие ворот под грузовой транспорт. Все коммцникации: отопление, вода, канализация, системы приточно-вытяжной вентиляции и кондиционирования, противопожарная система, электроэнергия - 200 кВт(увеличение до 500) Круглосуточная охрана и видеонаблюдение, охраняемые парковочные места (за дополнительную плату)
Цена 1200 руб. за кв. м. + НДС + КУ
Консультант Андрей Салимов
П50

Контактная информация

"1000 складов"

тел.: показать телефон

компания: "1000 складов"

Фотографии объекта

Другие объекты этого собственника

Другие объекты этого собственника

г. Колпино, ул. Финляндская

г. Колпино, ул. Финляндская

г. Колпино, ул. Финляндская

Аренда помещения под склад, 2 390,00 м²

1 200 руб. м² в месяц

пос. Шушары, ул. Ленина

пос. Шушары, ул. Ленина

пос. Шушары, ул. Ленина

Аренда помещения под склад, 2 376,00 м²

1 200 руб. м² в месяц

Санкт-Петербург, Лапинский пр-т

Санкт-Петербург, Лапинский пр-т

Санкт-Петербург, Лапинский пр-т

Аренда помещения под склад, 2 880,00 м²

1 200 руб. м² в месяц

Санкт-Петербург, Лапинский пр-т

Санкт-Петербург, Лапинский пр-т

Санкт-Петербург, Лапинский пр-т

Аренда помещения под склад, 2 880,00 м²

1 200 руб. м² в месяц

пос. Шушары, Московское ш.

пос. Шушары, Московское ш.

пос. Шушары, Московское ш.

Аренда помещения под склад, 2 927,00 м²

1 200 руб. м² в месяц

пос. Парголово, ул. Подгорная

пос. Парголово, ул. Подгорная

пос. Парголово, ул. Подгорная

Аренда помещения под склад, 2 361,00 м²

1 300 руб. м² в месяц

Санкт-Петербург, пр-кт Шафировский

Санкт-Петербург, пр-кт Шафировский

Санкт-Петербург, пр-кт Шафировский

Аренда помещения под склад, 2 500,00 м²

1 300 руб. м² в месяц

Санкт-Петербург, пр-кт Шафировский

Санкт-Петербург, пр-кт Шафировский

Санкт-Петербург, пр-кт Шафировский

Аренда помещения под склад, 2 500,00 м²

1 300 руб. м² в месяц

пос. Шушары, Московское ш.

пос. Шушары, Московское ш.

пос. Шушары, Московское ш.

Аренда помещения под склад, 2 200,00 м²

1 100 руб. м² в месяц

Санкт-Петербург, пр-кт Шафировский

Санкт-Петербург, пр-кт Шафировский

Санкт-Петербург, пр-кт Шафировский

Аренда помещения под склад, 2 000,00 м²

1 300 руб. м² в месяц