Санкт-Петербург,

Поиск недвижимости

Аренда помещения под склад

Объект находится в архиве и неактивен.

Аренда помещения под склад — Санкт-Петербург, Боровая ул., Санкт-Петербург

Цена аренды

799 руб. / 14 $ / 11 € / 10 £

Контакты:

"1000 складов"

тел.: показать телефон

объект № 13 586 311

Район
Фрунзенский район
Метро, ориентир
м. Обводный канал

Площадь
255,00 м²
Этаж
не указан/не указано
Телефония
есть

Здание

Всего этажей
не указано
Водоснабжение
есть
Электроснабжение
есть
Отопление
есть
Канализация
есть

Дополнительная информация


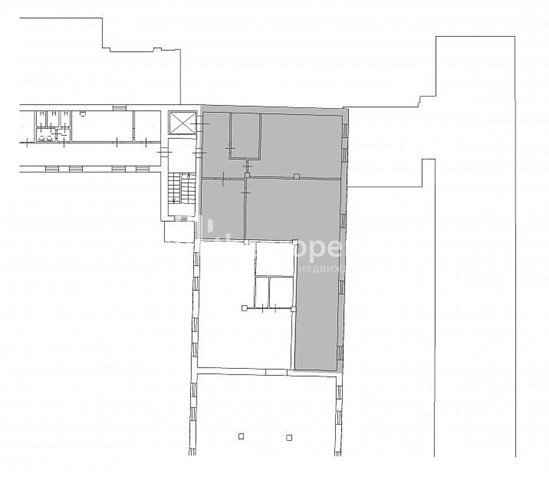
Код объекта: 19575 Фрунзенский р-н, ул. Боровая, м. Обводный канал.
 
Аренда отапливаемого помещения под студию, мастерскую, склад.
 
Площадь: 255,5 м2.
Этаж: 2-й.
Грузовой лифт: г/п 1т (2,2х2,5х2,3 м).
Высота потолков: 3,45 м.
Напольное покрытие: керамогранитная плитка.
Разгрузочная зона с воротами (2,1х1,4 м).
Выделенная электрическая мощность: 10 кВт.
Встроенные офисно-бытовые помещения.
Санузел, ХВС на этаже.
Высокоскоростной интернет, телефония.
Круглосуточная охрана территории.
Подъезд для легкового и малогабаритного грузового транспорта.
Удобная транспортная доступность.
Шаговая доступность от метро.
 
Арендная ставка: 799 руб./м2, вкл. НДС.
 
Консультант: Вадим.
Тел.: +7-981-126-56-06
п100

Контактная информация

"1000 складов"

тел.: показать телефон

компания: "1000 складов"

Фотографии объекта

Похожие объекты

Похожие объекты

ул. Промышленная,

ул. Промышленная,

ул. Промышленная,

Аренда помещения под склад, 214,00 м²

170 986 руб. в месяц

 ул. Боровая

ул. Боровая

ул. Боровая

Аренда помещения под склад, 255,00 м²

203 745 руб. в месяц

Санкт-Петербург, Ленинский пр. 139

Санкт-Петербург, Ленинский пр. 139

Санкт-Петербург, Ленинский пр. 139

Аренда помещения под склад, 216,00 м²

800 руб. м² в месяц

Пискарёвский пр-кт, 125Х

Пискарёвский пр-кт, 125Х

Пискарёвский пр-кт, 125Х

Аренда помещения под склад, 200,00 м²

160 000 руб. в месяц

ул. Промышленная,

ул. Промышленная,

ул. Промышленная,

Аренда помещения под склад, 283,00 м²

223 570 руб. в месяц

ул. Промышленная

ул. Промышленная

ул. Промышленная

Аренда помещения под склад, 283,00 м²

223 570 руб. в месяц

г. Пушкин,

г. Пушкин,

г. Пушкин,

Аренда помещения под склад, 180,00 м²

750 руб. м² в месяц

промзона Пески, ул. Магистральная

промзона Пески, ул. Магистральная

промзона Пески, ул. Магистральная

Аренда помещения под склад, 240,00 м²

180 000 руб. в месяц

Санкт-Петербург, ул. Маршала Новикова

Санкт-Петербург, ул. Маршала Новикова

Санкт-Петербург, ул. Маршала Новикова

Аренда помещения под склад, 256,00 м²

850 руб. м² в месяц

Санкт-Петербург, 6-ой Предпортовый проезд,

Санкт-Петербург, 6-ой Предпортовый проезд,

Санкт-Петербург, 6-ой Предпортовый проезд,

Аренда помещения под склад, 287,00 м²

700 руб. м² в месяц