Санкт-Петербург,

Поиск недвижимости

Продажа помещения под магазин

Продажа помещения под магазин — Санкт-Петербург, ул. Белоостровская, Санкт-Петербург

Цена аренды

68 240 000 руб. / 1 160 080 $ / 955 360 € / 887 120 £


Ежемесячный платеж по кредиту: 1002241.39 руб.

Запрос на кредит

К большому сожалению сделки, по покупке нежилого объекта под его же залог на сегодня являются единичными и уникальными. На Западе предпринимателю не придет в голову инвестировать полную стоимость в коммерческую недвижимость. Часть суммы традиционно расходуется на оформление коммерческой ипотеки и первый взнос по кредиту, остальное на развитие бизнеса. По данным экспертов спрос на ипотечное кредитование на коммерческие объекты недвижимости постоянно растет. Прежде всего, коммерческая ипотека дает прекрасную возможность перевести арендуемую площадь в собственность.

На сегодняшний день есть возможность купить коммерческую недвижимость с первым взносом от 10% на срок до 20 лет.

Напишите основные параметры , понравившегося Вам объекта – его стоимость, сумму кредита и мы рассчитаем возможные варианты.


Контакты:

"1000 складов"

тел.: показать телефон

объект № 13 586 301

Район
Кировский район
Метро, ориентир
м. Черная речка

Площадь
285,00 м²
Этаж
не указан/не указано
Телефония
есть

Здание

Всего этажей
не указано
Канализация
есть

Дополнительная информация


Код объекта: 19584 Санкт-Петербург, Кировский район, ул. Белоостровская, м. Чёрная речка
Продажа универсального помещения 285 м² у м. Черная речка
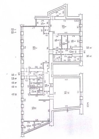
Продается универсальное помещение общей площадью 285 м². 1 этаж, отдельный вход с улицы и со двора. Возможно использовать под офис, отделение банка, мединцинскую клинику и т. д.  Высота потолка 3,4 м. 15 окон на улицу и 7 окон во двор. Ранее был ресторан, есть согласованная вытяжка. Все коммуникации: отопление, вода, канализация, электроэнергия - 15 кВт Сейчас сидит арендатор ( договор на 11 месяцев), в августе заканчивается.
Цена  68,24 млн. руб
Консультант Андрей Салимов
П2



Электричество: есть
Водоснабжение: есть
Канализация: есть

Контактная информация

"1000 складов"

тел.: показать телефон

компания: "1000 складов"

Фотографии объекта

Другие объекты этого собственника

Другие объекты этого собственника

г. Пушкин,

г. Пушкин,

Продажа универсального помещения, 11 000,00 м²

800 000 000 руб.

посёлок Сапёрный, Петрозаводское шоссе

посёлок Сапёрный, Петрозаводское шоссе

посёлок Сапёрный, Петрозаводское шоссе

Продажа помещения под магазин, 8 000,00 м²

415 000 000 руб.

территория СНТ Заречное,

территория СНТ Заречное,

территория СНТ Заречное,

Продажа универсального помещения, 68,00 м²

14 000 000 руб.

Санкт-Петербург, ул.Бармалеева

Санкт-Петербург, ул.Бармалеева

Санкт-Петербург, ул.Бармалеева

Продажа универсального помещения, 4 475,00 м²

650 000 000 руб.

Санкт-Петербург, ул.Бармалеева

Санкт-Петербург, ул.Бармалеева

Санкт-Петербург, ул.Бармалеева

Продажа помещения под офис, 4 475,00 м²

650 000 000 руб.

Санкт-Петербург, ул Малая Митрофаньевская

Санкт-Петербург, ул Малая Митрофаньевская

Санкт-Петербург, ул Малая Митрофаньевская

Продажа универсального помещения, 360,00 м²

48 000 000 руб.

Санкт-Петербург, ул Малая Митрофаньевская

Санкт-Петербург, ул Малая Митрофаньевская

Санкт-Петербург, ул Малая Митрофаньевская

Продажа помещения под магазин, 360,00 м²

48 000 000 руб.

Санкт-Петербург, Нефтяная дорога

Санкт-Петербург, Нефтяная дорога

Санкт-Петербург, Нефтяная дорога

Продажа помещения под магазин, 360,00 м²

50 000 000 руб.

Санкт-Петербург, Нефтяная дорога

Санкт-Петербург, Нефтяная дорога

Санкт-Петербург, Нефтяная дорога

Продажа помещения под магазин, 1 000,00 м²

188 440 000 руб.

Санкт-Петербург, Нефтяная дорога

Санкт-Петербург, Нефтяная дорога

Санкт-Петербург, Нефтяная дорога

Продажа помещения под магазин, 10 672,00 м²

1 280 000 000 руб.