Санкт-Петербург,

Поиск недвижимости

Аренда помещения под склад

Объект находится в архиве и неактивен.

Аренда помещения под склад — Санкт-Петербург, Минеральная ул., Санкт-Петербург

Цена аренды

999 руб. / 17 $ / 14 € / 13 £

Контакты:

"1000 складов"

тел.: показать телефон

объект № 13 586 179

Район
Калининский район
Метро, ориентир
м. Площадь Ленина

Площадь
305,00 м²
Этаж
не указан/не указано
Телефония
есть

Здание

Всего этажей
не указано
Водоснабжение
есть
Электроснабжение
есть
Отопление
есть
Канализация
есть

Дополнительная информация


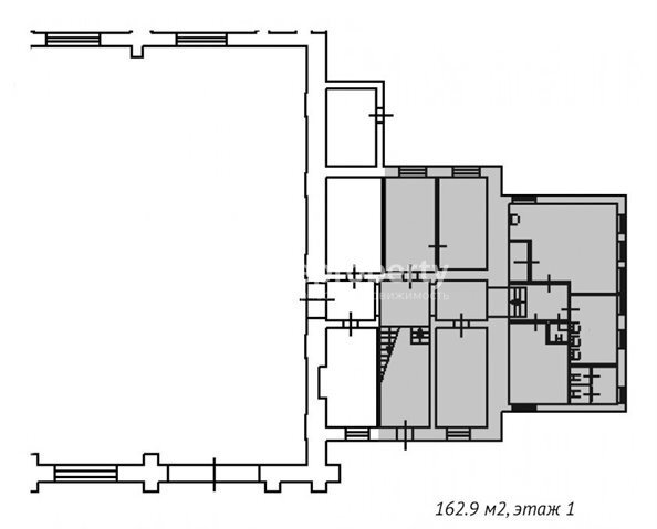
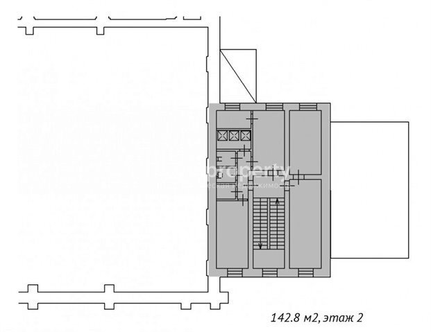
Код объекта: 20632 Калининский р-н, ул. Минеральная, м. Площадь Ленина.
 
Аренда отапливаемого помещения под лабораторию, мастерскую, производство, склад.
 
Площадь: 305,7 м2.
Кабинетная планировка.
Этаж: 1-2-й:
- 1-й этаж – 162,9 м2;
- 2-й этаж – 142,8 м2.
Высота потолков: 3,5 м.
Пол: ровный, бетонный.
Отдельный вход.
Выделенная электрическая мощность: по запросу.
ХВС, канализация, с/у.
Пожарная сигнализация.
Высокоскоростной интернет, телефония.
Круглосуточная охрана территории.
Доступ – 24/7.
Подъезд для легкового и грузового транспорта.
Парковка.
Удобная транспортная доступность.
Шаговая доступность от метро.
К услугам арендаторов кафе-столовая.
 
Арендная ставка: 999 руб./м2, вкл. НДС.
 
Консультант: Вадим.
Тел.: +7-981-126-56-06
п100

Контактная информация

"1000 складов"

тел.: показать телефон

компания: "1000 складов"

Фотографии объекта

Похожие объекты

Похожие объекты

Новолитовская ул, 15Д

Новолитовская ул, 15Д

Новолитовская ул, 15Д

Аренда помещения под склад, 302,00 м²

302 000 руб. в месяц

Мебельная

Мебельная

Мебельная

Аренда помещения под производство, 330,00 м²

330 000 руб. в месяц

Санкт-Петербург, 4-ый Предпортовый проезд

Санкт-Петербург, 4-ый Предпортовый проезд

Санкт-Петербург, 4-ый Предпортовый проезд

Аренда помещения под склад, 300,00 м²

1 000 руб. м² в месяц

Санкт-Петербург, пр. Полюстровский

Санкт-Петербург, пр. Полюстровский

Санкт-Петербург, пр. Полюстровский

Аренда помещения под склад, 280,00 м²

1 000 руб. м² в месяц

На Петро-Славянку дор, 7Х

На Петро-Славянку дор, 7Х

На Петро-Славянку дор, 7Х

Аренда помещения под производство, 261,70 м²

247 307 руб. в месяц

Санкт-Петербург, ул. Маршала Новикова

Санкт-Петербург, ул. Маршала Новикова

Санкт-Петербург, ул. Маршала Новикова

Аренда помещения под склад, 256,00 м²

850 руб. м² в месяц

Санкт-Петербург, Ленинский пр. 139

Санкт-Петербург, Ленинский пр. 139

Санкт-Петербург, Ленинский пр. 139

Аренда помещения под склад, 216,00 м²

800 руб. м² в месяц

ул. Промышленная,

ул. Промышленная,

ул. Промышленная,

Аренда помещения под склад, 214,00 м²

170 986 руб. в месяц

 ул. Боровая

ул. Боровая

ул. Боровая

Аренда помещения под склад, 255,00 м²

203 745 руб. в месяц

ул. Промышленная,

ул. Промышленная,

ул. Промышленная,

Аренда помещения под склад, 283,00 м²

223 570 руб. в месяц